Portland House Stories
Every house has a story. I try to tell them.
Menu
Skip to content
Home
About
Methodology
Resources
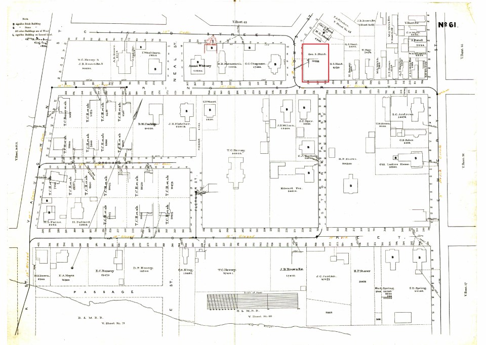
1 Thomas St_1882
← Previous
Next →
Leave a comment
Cancel reply
Δ
This site uses Akismet to reduce spam.
Learn how your comment data is processed.
Comment
Subscribe
Subscribed
Portland House Stories
Join 115 other subscribers
Sign me up
Already have a WordPress.com account?
Log in now.
Portland House Stories
Subscribe
Subscribed
Sign up
Log in
Copy shortlink
Report this content
View post in Reader
Manage subscriptions
Collapse this bar